Cuisine Sur-Mesure
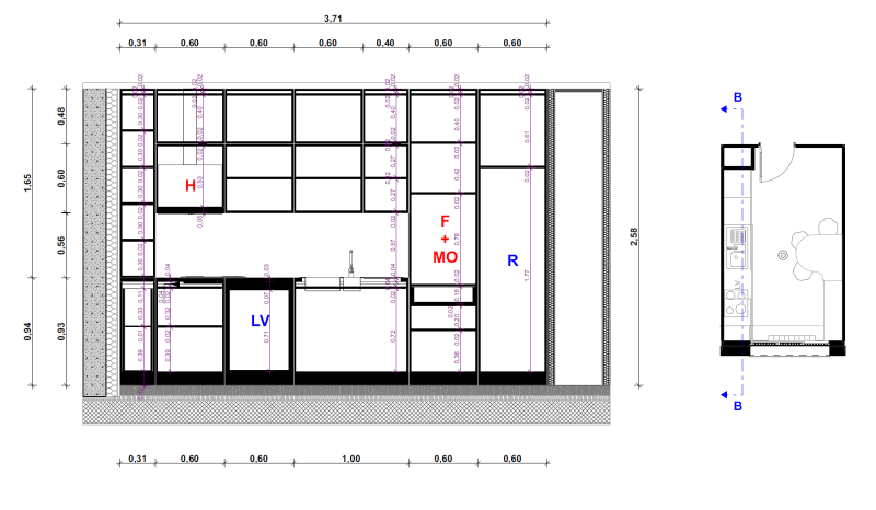
Entre contraintes techniques et esthétique maîtrisée, la clientèle nous a fait appel afin d'imaginer une cuisine équipé avec un espace restauration et des rangements. Ainsi, l'idée était de créer une cuisine équipée pour ses pauses déjeuner, tout en pensant à la valeur ajoutée en cas de revente du local.
Les défis :
- Adapter la conception à une pièce de petit taille, avec des dimensions particulières
- Concevoir des meubles sur-mesure
- Optimiser chaque m² pour un maximum de rangements
- Offrir un rendu moderne et harmonieux
Projet réalisé dans le cadre d'un stage chez Tilia Intérieur
Conception au nom de l'agence TILIA INTERIEUR
Créez votre propre site internet avec Webador